Kia Optima: Система контроля выбросов / Система контроля выбросов паров топлива

Руководство по ремонту и обслуживанию Kia Optima DL3 2019-2023 гг. / Система контроля выбросов / Система контроля выбросов паров топлива

Описание и работа
Описание

Система контроля выбросов паров топлива предотвращает попадание паров топлива, хранящихся в топливном баке. испаряясь в атмосферу. Когда топливо испаряется в топливном баке, пар проходит через вентиляционные шланги или трубки в канистру, наполненную древесным углем. Канистра временно удерживает пар в древесном угле. Если ECM решит использовать собранные пары в камеры сгорания при определенных условиях эксплуатации, это разрежение во впускном коллекторе.

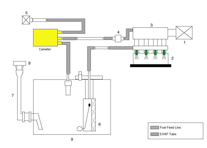
Принципиальные диаграммы
Схематическая диаграмма

1. Воздухоочиститель
2. Напорная труба и инжектор
3. Двигатель
4. Электромагнитный клапан управления продувкой (PCSV)
5. Воздушный фильтр топливного бака
6. Топливный насос
7. Горловина топливного бака
8. Крышка топливного бака
9. Топливный бак

Канистра

Канистра заполнена древесным углем и поглощает испаряющиеся пары в топливном баке. собранные пары топлива в адсорбере втягиваются во впускной коллектор блоком ECM/PCM когда созданы соответствующие условия.

Соленоид управления продувкой Клапан (PCSV)

Электромагнитный клапан управления продувкой (PCSV) установлен в проходе, соединяющем адсорбер и впускной коллектор. Это электромагнитный клапан рабочего типа, управляемый ECM/PCM. сигнал.

Чтобы всосать поглощенный пар во впускной коллектор, ECM/PCM открывает клапан. PCSV, иначе проход останется закрытым.

Крышка топливного бака

Храповое затяжное устройство на резьбовой крышке топливного бака снижает вероятность неправильной установки, что приведет к герметизации заливной горловины. После прокладки на крышка топливного бака и фланец заливной горловины соприкасаются, храповик производит громкий щелчок, указывающий на то, что уплотнение установлено.

Клапан принудительной вентиляции картера (PCV)
Описание и работа Принцип работы Процедуры ремонта Удаление 1. Отсоедините паровой шланг (А). 2. Удалите значение PCV ...
Канистра
Процедуры ремонта Удаление 1. Отсоедините отрицательный (-) кабель аккумуляторной батареи. 2. Снимите втулку стабилизатора поперечной устойчивости (А). Затягивание ...
Дополнительная информация:

Kia Optima DL3 2019-2023 Руководство по ремонту и обслуживанию: Замок задней двери


Компоненты и расположение компонентов Расположение компонента 1. Замок задней двери Процедуры ремонта Замена • При удалении плоской отверткой...

Kia Optima DL3 2019-2023 Руководство по эксплуатации: Передняя противотуманная фара


Противотуманные фары используются для улучшения видимости, когда видимость плохая из-за к туману, дождю или снегу и т. д. Противотуманные фары включатся, когда переключатель противотуманных фар (1) включается после включения фар. Чтобы выключить противотуманные фары, поверните переключатель (1) в положение выключения...