Kia Soul EV: BCM (модуль управления кузовным оборудованием) / принципиальные схемы

Kia Soul EV (PS EV) 2015-2020 Руководство по техническому обслуживанию / Электрическая система кузова / BCM (модуль управления кузовом) / Принципиальные схемы

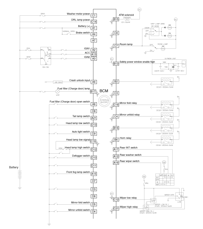
Принципиальная электрическая схема

Описание и работа
Описание CAN-коммуникация BCM Функция ФункцияОписаниеТаймерОбогревательПри включении зажигания функция управления задним отопителемЗащитное стеклоподъемникВ соответствии с положением ключа выход C электростеклоподъемника ...
Процедуры ремонта
Удаление 1. Отсоедините отрицательную (-) клемму аккумуляторной батареи. 2. Снимите головное устройство аудио/AVN в сборе. (См. Электрическая система кузова — «Аудиоблок») (См. Электрическая система кузова - "AVN...
Дополнительная информация:

Kia Soul EV (PS EV) 2015-2020 Руководство по обслуживанию: Компоненты модуля задней двери и расположение компонентов


Расположение компонента 1. Модуль задней двери ...

Kia Soul EV (PS EV) 2015-2020 Руководство по техническому обслуживанию: Порядок ремонта датчика помощи при парковке


Удаление 1. Отсоедините отрицательную (-) клемму аккумуляторной батареи. 2. Снимите кожух переднего/заднего бампера. (См. Кузов — «Крышка переднего бампера») (См. Кузов — «Крышка заднего бампера») 3. Отсоедините разъем (А) от ультразвукового датчика. [Передний датчик, задний центральный датчик] [Датчик задней стороны...