Kia Sorento: Operation - Evaporative Emission Control System - Emission Control System - Kia Sorento XM 2011-2023 Service Manual Киа Соренто: Эксплуатация

XM второго поколения (2011-2023 гг.) / Kia Sorento XM 2011-2023 Руководство по ремонту / Система контроля выбросов / Система контроля выбросов паров топлива / Операция

Мониторинг испарительной системы

Испарительная система и система контроля выбросов ORVR
Эта система состоит из следующих пунктов;
-
Заполнить вентиляционный клапан
-
Клапан отсечки топлива
-
Клапан отсечки топлива (для опрокидывания)
-
Двухходовой клапан (сброс давления/вакуума)
-
Сепаратор топливной жидкости/паров, который устанавливается рядом с заливной горловиной трубка
-
Бачок с активированным углем, установленный под задним полом с левой стороны. член и защитник
-
Трубки и разные соединения
При заправке в заливную горловину всасывается окружающий воздух, чтобы не выделяют пары топлива в воздух. Затем пары топлива в баке вынуждены течь в канистру через выпускной клапан. Сепаратор топливной жидкости/паров изолирует жидкое топливо и пропускает чистый пар в угольный адсорбер.
Пока двигатель работает, пары, попавшие в адсорбер, всасываются. во впускной коллектор, а затем в камеру сгорания двигателя. Согласно к этому процессу продувки угольный фильтр очищается и восстанавливает свои поглощающие свойства. способность.

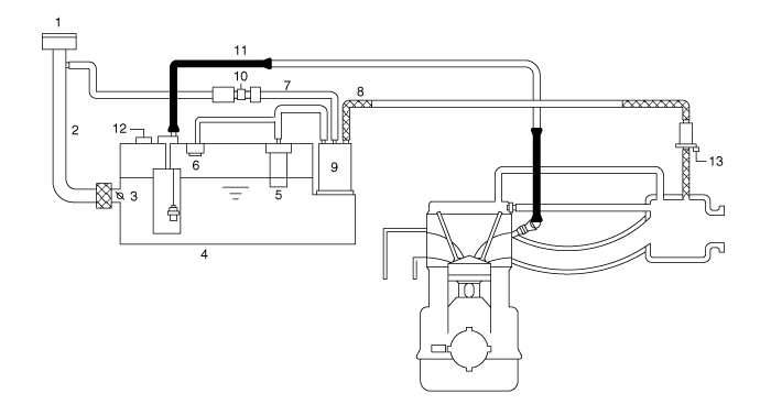
1. Крышка топливного бака
2. Топливная горловина
3. Клапан отсечки топлива
4. Топливный бак
5. Клапан ОРВР
6. 2-ходовой и отсечной клапан
7. Испарительный шланг
8. Испарительный шланг
9. Канистра
10. Клапан закрытия адсорбера (CCV)
11. Линия подачи топлива
12. Датчик давления в топливном баке (FTPS)
13. Электромагнитный клапан управления продувкой (PCSV)

Описание
Система контроля выбросов паров топлива предотвращает накопление паров топлива в топливе. бак от испарения в атмосферу. Когда топливо испаряется в топливе бак, пар проходит через вентиляционные шланги...
Схематическая диаграмма
Канистра Канистра заполнена древесным углем и поглощает испаряющиеся пары топлива. бак. Собранные пары топлива в адсорбере всасываются во впускной коллектор. блоком ECM/PCM при необходимости ...
Смотрите также:

Проверка клапана принудительной вентиляции картера (PCV)
1. Вставьте тонкую палочку (А) в клапан PCV (В) из резьбового отверстия. сторону, чтобы убедиться, что поршень движется. ...

Функция экономии заряда батареи
Эта функция предназначена для предотвращения разрядки аккумулятора. если фары остаются в положении ON. Система автоматически отключается габаритные огни через 30 секунд после...

Компоненты преднатяжителя ремня безопасности (BPT)
...