Kia Sorento: Instrument Cluster Circuit Diagram - Indicators And Gauges - Body Electrical System - Kia Sorento XM 2011-2023 Service Manual Kia Sorento: схема комбинации приборов

XM второго поколения (2011-2023 гг.) / Kia Sorento XM 2011-2023 Руководство по ремонту / Электрическая система кузова / Индикаторы и датчики / Схема комбинации приборов

Компоненты комбинации приборов
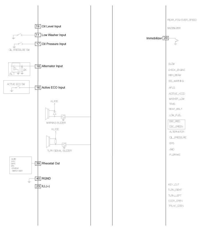
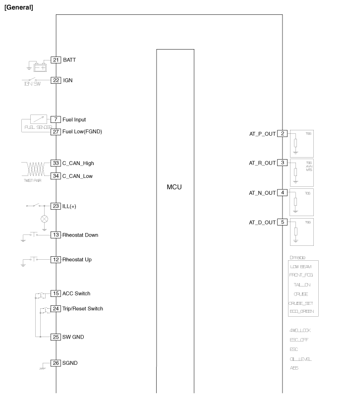
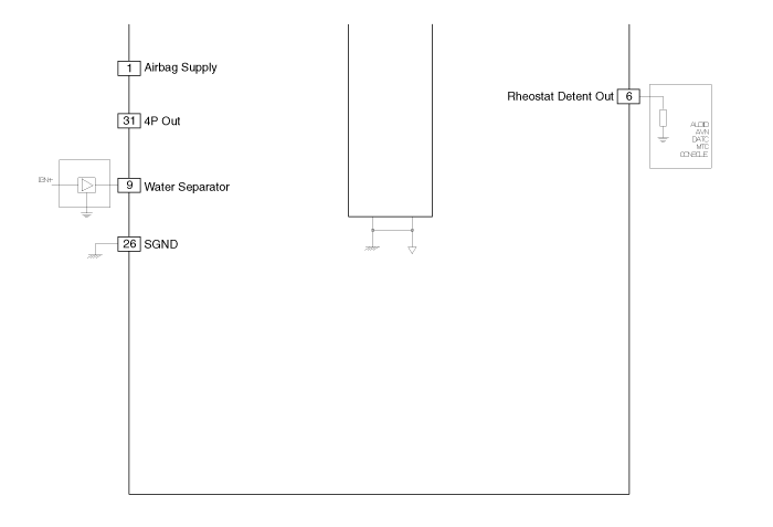
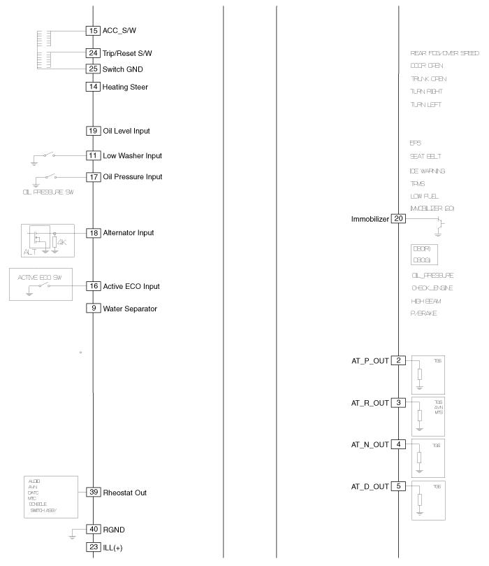
Информация о выводах разъема Пин № Описание Пин № Описание 1 Поставка подушки безопасности 21 Батарея 2 П (АТ) ...
Удаление комбинации приборов
1. Отсоедините отрицательную (-) клемму аккумуляторной батареи. 2. Снимите переднюю панель комбинации приборов (A). (См. Тело — «Аварийная панель») ...
Смотрите также:

Снятие переключателя обогревателя заднего стекла
1. Отсоедините отрицательную (-) клемму аккумуляторной батареи. 2. Снимите центральную панель (А). (См. Тело — «Аварийная панель») ...

Технические характеристики
Аудио Элемент Спецификация Модель РАДИО/CD/MP3/SDARS (ПА30А) РАДИО/VCD/MP3/SDARS (БА900) РАДИО HD/VCD/MP3/SDARS (BA950) Источник питания ...

Автоматический реверс
' Во время открывания и закрывания с электроприводом, если дверь багажного отделения с электроприводом заблокирована каким-либо предметом или часть тела, дверь багажника с электроприводом обнаружит сопротивление. Если сопротивление обнаружено при открытии ...