Hyundai i-20 manuels

Hyundai i-20 (GB) 2014-2023 Автосервис Руководство: Схемы схемы

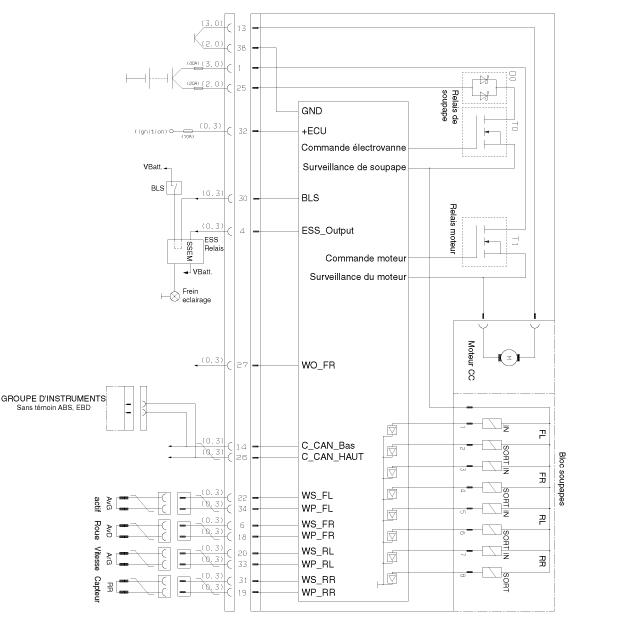
ПРИНЦИПАЛЬНАЯ СХЕМА

ТЕРМИНАЛ ФУНКЦИЯ

Соединительный терминал
Спецификация
НЕТ
Описание
МАКС
МИН.
13
Масса двигателя насоса
39А
10А
38
Масса для электромагнитных клапанов и ECU
15А

1
Электропитание двигателя насоса
39А
10А
25
Электропитание электромагнитных клапанов
15А

32
Напряжение для ЭБУ

500 мА
22
Сигнал датчика скорости колеса AvG
16,8 мА
5,9 мА
6
Сигнал датчика скорости колеса AvD
20
Сигнал датчика скорости вращения колеса ArG
31
Сигнал датчика скорости вращения колеса ArD
34
Средняя мощность датчика скорости вращения колеса
16,8 мА
5,9 мА
18
Питание датчика скорости переднего колеса
33
Питание датчика скорости вращения колеса ArG
19
Питание датчика скорости вращения колеса ArD
27
Выходной сигнал скорости колеса
Сливное отверстие
-
4
Выходной сигнал аварийной остановки
200 мА
100 мА
41
CAN Низкий
30 мА
20 мА
26
CAN Высокий


30
Сигнал выключателя стоп-сигнала
10 мА
5 мА

Принципиальные диаграммы
ПРИНЦИПАЛЬНАЯ СХЕМА ТЕРМИНАЛ ФУНКЦИЯ Соединительный терминал Спецификация НЕТ Описание М...

Процедуры ремонта
Прокачка системы ASB Необходимо строго соблюдать следующую процедуру, чтобы обеспечить хороший воздухоотвод и наполнение блока ESC, провод...
Другие материалы:

Отключение системы иммобилайзера
Если рычаг переключения передач не может быть перемещен из из положения P (парковка) в положение R (задний ход) при нажатой педали тормоза, продолжайте нажимать на педаль тормоза, а затем действуйте следующим образом: 1. Нажмите кнопку освобождения рычага переключения передач...

Процедуры ремонта
ОБЩИЙ КОНТРОЛЬ После или перед обслуживанием системы EPS выполните процедуру поиска неисправности и проверить следующим образом. Сравните состояние системы с нормальным состоянием в таблице ниже, и если обнаружен какой-либо аномальный симптом, применяется...