#заголовок

Hyundai Sonata: система контроля улавливания паров топлива / принципиальные схемы

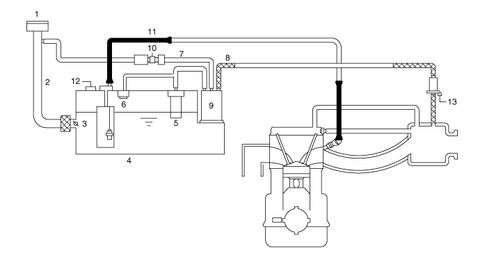
Схематическая диаграмма

Канистра
Канистра заполнена древесным углем и поглощает испаряющийся паров топлива из топливного бака. Собранные пары топлива в адсорбере втягивается во впускной коллектор блоком ECM/PCM при необходимости условия установлены.
Электромагнитный клапан управления продувкой (PCSV)
Электромагнитный клапан управления продувкой (PCSV) установлен в проход, соединяющий адсорбер с впускным коллектором. это долг тип электромагнитного клапана и управляется сигналом ECM/PCM.
Для всасывания абсорбированных паров во впускной коллектор модуль ECM/PCM открывает PCSV, в противном случае проход остается закрытым.
Крышка топливного бака
Храповое затяжное устройство в резьбовой крышке топливного бака снижает вероятность неправильной установки при герметизации топливного бака наполнитель. После прокладки на крышке топливного бака и фланце заливной горловины контакт, храповик издает громкий щелчок, указывающий на печать установлена.
Датчик давления в топливном баке (FTPS)
Датчик давления в топливном баке (FTPS) является неотъемлемой частью система мониторинга. FTPS проверяет электромагнитный клапан управления продувкой. (PCSV) и утечки в системе контроля выбросов паров топлива контроль давления и уровня разрежения в топливном баке во время PCSV рабочие циклы.
Клапан закрытия канистры (CCV)
Клапан закрытия адсорбера (CCV) расположен между канистру и воздушный фильтр топливного бака. Он закрывает вход воздуха в канистра для системы улавливания паров топлива, а также предотвращает попадание топлива паров от выхода из канистры, когда автомобиль не операционная.
Мониторинг испарительной системы
Система контроля улавливания паров топлива контролирует образование паров топлива, вакуумирование и этап проверки на утечку. Сначала, система OBD-II проверяет, не происходит ли образование паров из-за температуры топлива. достаточно мал, чтобы начать мониторинг. Затем он откачивает испаряющийся система с помощью PCSV с рампой для поддержания определенного вакуума уровень. Последним шагом является проверка отсутствия потери вакуума из-за какой-либо утечки. системы.
Проверка парообразования
В период стабилизации PCSV и CCV закрыто. Давление в системе измеряется как начальное давление (DP_A). По истечении определенного периода времени (T1) давление в системе (DP_B) равно измеряется снова, и разница от начального давления составляет вычислено. Если эта разница (DP_B - DP_A) больше, чем пороговое значение, давление паров должно быть избыточным, а монитор прервано для следующей проверки. Наоборот, если разница меньше отрицательный порог, PCSV считается неисправным например, засорен в открытом положении.
Обнаружение большой утечки EVAP
PCSV открывается с определенной рампой для снижения давления. дойти до определенного уровня. Если давление не может быть снижено ниже пороговое значение, система рассматривается как имеющая открытую крышку топливного бака или имеющую большая утечка.
Утечка Проверка
PCSV закрывается, и система ожидает некоторое время, чтобы получить стабилизированное давление. В течение периода проверки (T2) система измеряет начало и конец давления в системе (DP_C, DP_D). диагностическим значением является разница давлений, скорректированная естественным уровень парообразования (DP_B - DP_A) по результатам проверки парообразования шаг.
Мониторинг испарительной системы

Испарительная система и система контроля выбросов ORVR
Эта система состоит из клапана наполнения и отсечки топлива. клапан, клапан отсечки топлива (для опрокидывания), двухходовой клапан (давление/вакуум сброс), сепаратор топливной жидкости/паров, который установлен рядом с наполнительная труба, угольный фильтр, установленный под задним полом слева лонжерон и протектор, трубки и разные соединения.
При заправке в заливную горловину втягивается окружающий воздух, поэтому чтобы не выделять пары топлива в воздух. Пары топлива в баке затем принудительно поступает в канистру через выпускной клапан. Топливо сепаратор жидкость/пар изолирует жидкое топливо и пропускает чистый пар в угольный баллончик.
Во время работы двигателя пары, попавшие в канистра втягивается во впускной коллектор, а затем в двигатель камера сгорания. Используя этот процесс очистки, угольный фильтр очищается. очищается и восстанавливает свою поглощающую способность.

1. Крышка топливного бака
2. Топливная горловина
3. Клапан отсечки топлива
4. Топливный бак
5. Клапан ОРВР
6. 2-ходовой и отсечной клапан
7. Испарительный шланг
8. Испарительный шланг
9. Канистра
10. Клапан закрытия адсорбера (CCV)
11. Линия подачи топлива
12. Датчик давления в топливном баке (FTPS)
13. Электромагнитный клапан управления продувкой (PCSV)

Описание и работа
Описание Система контроля выбросов паров топлива предотвращает выброс паров топлива. храниться в топливном баке от испарения в атмосферу. Когда топливо испаряется в топливном баке, пар проходит через ...
Процедуры ремонта
осмотр [Проверка системы] 1. Отсоедините паровой шланг от впускного коллектора и подсоедините вакуумный насос к ниппелю на впускном коллекторе. · При холодном двигателе [Температура охлаждающей жидкости двигателя ...
Дополнительная информация:

Руководство по эксплуатации Hyundai Sonata LF 2014-2019: График технического обслуживания
Когда вы останавливаетесь для заправки: Проверьте уровень моторного масла. Проверьте уровень охлаждающей жидкости в бачке охлаждающей жидкости двигателя. Проверьте уровень жидкости омывателя ветрового стекла. Проверьте шины на низкие или недостаточно накачанные. ПРЕДУПРЕЖДЕНИЕ Будьте осторожны при проверке уровня охлаждающей жидкости двигателя на горячем двигателе. Это может привести к охлаждению...

Hyundai Sonata LF 2014-2019 Руководство по ремонту: Ремонт реостата
осмотр 1. Отсоедините отрицательную (-) клемму аккумуляторной батареи. 2. Снимите нижнюю панель аварийной подушки. (См. Кузов — «Нижняя панель аварийной площадки») 3. Снимите узел переключателя нижней аварийной подушки (А), отсоединив монтажный зажим. 4. Снимите разъем выключателя реостата (А). 5. Проверять ...

avtotema.org