Kia Optima: электрическая система кузова / интегрированный блок управления кузовным оборудованием (IBU)

Руководство по ремонту и обслуживанию Kia Optima DL3 2019-2023 гг. / Электрическая система кузова / Встроенный блок управления кузовом (IBU)

Компоненты и расположение компонентов
Расположение компонента

1. Встроенный блок управления кузовом (МСБ)


Принципиальные диаграммы
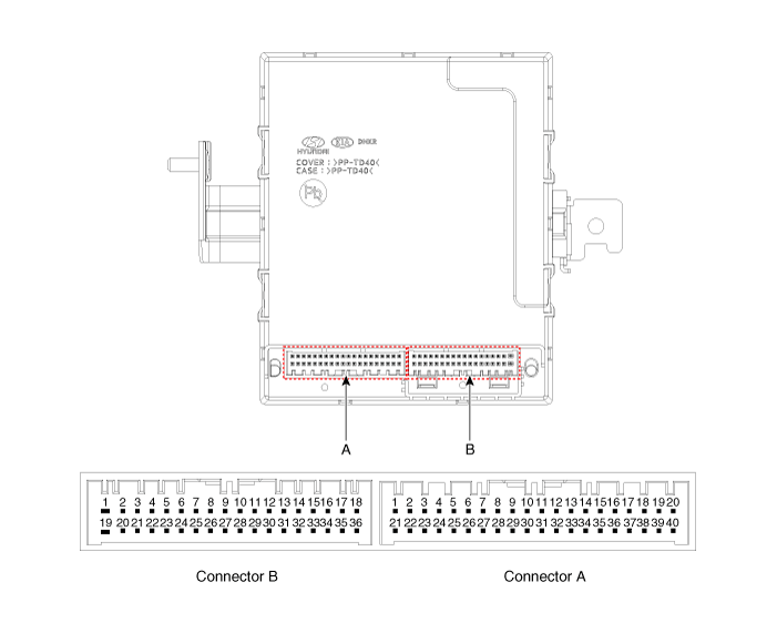
Разъем и функция терминала
[Не умный ключ]

Приколоть
Функция
Соединитель А
Соединитель Б
1
-
Выключатель переднего омывателя (выходной)
2
Индикатор заднего ремня безопасности_Левый (Выход)
-
3
-
Соленоид ключа (выход)
4
-
Ключ в переключателе (вход)
5
-
Переключатель блокировки с ключом (вход) / «P»: позиционный переключатель
6
Индикатор заднего ремня безопасности_Центр (Выход)
Парковочный переключатель стеклоочистителя (вход)
7
-
-
8
Индикатор заднего ремня безопасности_Правый (Выходной)
Выключатель тормоза (вход)
9
-
-
10
Переключатель дальнего света фар (вход)
Переключатель громкости переднего стеклоочистителя (вход)
11
-
Подсветка замочной скважины (выход)
12
-
LIN4 (ЭБУ системы безопасности)
13
Переключатель заднего вида (вход)
Опция PAS (вход)
14
-
-
15
Мощность ДПАС (выходная)
B-CAN (низкий уровень)
16
Мощность FRAS (выход)
B-CAN (высокий)
17
Мощность PAS/RPAS (вход)
-
18
-
Земля (мощность)
19
-
-
20
Земля (ЭБУ)
Мощность иммобилайзера (выход)
21
-
Масса иммобилайзера (выход)
22
K-Line_Иммобилайзер
Реле запрета пуска
23
-
Индикатор переключения PAS/RPAS (выход)
24
-
Переключатель переднего стеклоочистителя (вход)
25
Состояние люка (ввод)
-
26
Переключатель PAS/RPAS (вход)
Масса многофункционального переключателя (вход)
27
Соленоид банкомата (выход)
Реле питания стеклоочистителя (выход)
28
-
Масса датчика автоосвещения (выход)
29
LIN2 (ROA)
Сигнал датчика автоосвещения (вход)
30
LIN1 (PDW-F или PDW-R)
Мощность датчика автоматического освещения (выход)
31
Сигнал отпирания двери (для IFU) EMS (выход)
-
32
Выключатель света (вход)
Реле высокого уровня переднего стеклоочистителя (выход)
33
Переключатель тумана (вход)
Реле низкого уровня переднего стеклоочистителя (выход)
34
IGN2 (вход)
Переключатель низкого резерва переднего стеклоочистителя (вход)
35
IGN1 (вход)
P-CAN (низкий)
36
АКК (вход)
P-CAN (высокий)
37
Аккумулятор + (ЭБУ)

38
Батарея + (мощность)
39
-
40
Форсунка с подогревом (выход)

[Умный ключ]

Приколоть
Функция
Соединитель А
Соединитель Б
Соединитель С
Соединитель D
1
-
Выключатель переднего омывателя (выходной)
-
Переключатель внешней ручки водителя (вход)
2
Индикатор заднего ремня безопасности_Левый (Выход)
-
Включение ESCL (выход)
Вспомогательный переключатель на внешней ручке (вход)
3
-
-
ESCL - (выход)
-
4
-
-
-
-
5
Внешний зуммер (выход)
-
-
об/мин (вход)
6
Индикатор заднего ремня безопасности_Центр (Выход)
Парковочный переключатель стеклоочистителя (вход)
-
Подсветка символа SSB (+) (выход)
7
Карманный фонарь лужи (выход)
-
Переключатель разблокировки ESCL (вход)
Реле ACC (выход)
8
Индикатор заднего ремня безопасности_Правый (Выходной)
Выключатель тормоза (вход)
-
Реле IGN1 (выход)
9
-
-
-
Реле IGN2 (выход)
10
Переключатель дальнего света фар (вход)
Переключатель громкости переднего стеклоочистителя (вход)
ESCL + (выход)
Реле стартера (выход)
11
-
-

Вспомогательная антенна на внешней ручке (+) (выход)
12
-
LIN4 (ЭБУ системы безопасности)
Внутренняя антенна 2 (+) (выход)
13
Переключатель заднего вида (вход)
Опция PAS (вход)
Внутренняя антенна багажника 3 (+) (выход)
14
-
-
Внутренняя антенна 1 (+) (выход)
15
Мощность ДПАС (выходная)
B-CAN (низкий уровень)
Бамперная антенна (+) (выход)
16
Мощность FRAS (выход)
B-CAN (высокий)
Антенна на внешней ручке водителя (+) (выход)
17
Мощность PAS/RPAS (вход)
-
-
18
-
Земля (мощность)
-
19
-
-
-
20
Земля (ЭБУ)
Мощность иммобилайзера (выход)
-
21
-
Масса иммобилайзера (выход)
Переключатель SSB 1 (вход)
22
K-Line_Иммобилайзер
-
Переключатель SSB 2 (вход)
23
-
Индикатор переключения PAS/RPAS (выход)
Выключатель блокировки IGN сцепления
24
-
Переключатель переднего стеклоочистителя (вход)
ESCL COM
25
Состояние люка (ввод)
-
Датчик скорости колеса (вход)
26
Переключатель PAS/RPAS (вход)
Масса многофункционального переключателя (вход)
-
27
Соленоид банкомата (выход)
Реле питания стеклоочистителя (выход)
-
28
LIN3 (датчик дождя)
Масса датчика автоосвещения (выход)
-
29
LIN2 (ROA)
Сигнал датчика автоосвещения (вход)
-
30
LIN1 (PDW-F или PDW-R)
Мощность датчика автоматического освещения (выход)
Начать обратную связь (ввод)
31
Сигнал отпирания двери (для IFU) EMS (выход)
-
Вспомогательная антенна на внешней ручке (-) (выход)
32
Выключатель света (вход)
Реле высокого уровня переднего стеклоочистителя (выход)
Внутренняя антенна 2 (-) (выход)
33
Переключатель тумана (вход)
Реле низкого уровня переднего стеклоочистителя (выход)
Внутренняя антенна багажника 3 (-) (выход)
34
IGN2 (вход)
Переключатель низкого резерва переднего стеклоочистителя (вход)
Внутренняя антенна 1 (-) (выход)
35
IGN1 (вход)
P-CAN (низкий)
Бамперная антенна (-) (выход)
36
АКК (вход)
P-CAN (высокий)
Антенна на внешней ручке водителя (-) (выход)
37
Аккумулятор + (ЭБУ)

-
38
Батарея + (мощность)
-
39
-
-
40
Форсунка с подогревом (выход)
Положение «P» (вход)

Описание и работа
Описание

Интегрированное управление телом Единица измерения (МСБ)

Встроенный блок управления кузовом имеет несколько функций, в том числе модуль управления (IBU), блок смарт-ключей (SMK) и система контроля давления в шинах (TPMS).

1.

Модуль управления кузовным оборудованием (IBU) Функции

Охранная сигнализация
Охранная сигнализация задней двери
Выдает сигнал тревоги в зависимости от работы задней двери.
Тревога паники
Генерирует предупреждающий звук и отображает мигающую лампу (гудок и мигалка) в зависимости от сигнала паники.
Управление лампой безопасности
Управляет лампой безопасности в состоянии тревоги автомобиля.
Внешняя лампа
Задний фонарь
Автоматически включает/выключает задний фонарь. Он также выключает задний фонарь автоматически, когда водитель забыл выключить фонарь выключатель.
Авто свет
Автоматически включает/выключает задний фонарь и фару в зависимости от от того, день или ночь, когда переключатель фар находится в Авто.
Приветственный свет
Функция приветственного света включает фару и задний фонарь. в течение 15 секунд при обнаружении сигнала отпирания двери автомобиля. заблокирован.
Функция сопровождения
Включает фонарь сопровождения при отключении питания во время горит головной свет.

Он включает фару и поддерживает состояние в течение 5 минут, если зажигание выключено, а фара включен.

Фара выключается, когда кнопка блокировки пульта дистанционного управления дважды нажимается при включенном фаре.

Фара остается включенной только в течение 15 секунд, когда дверь сиденья водителя открывается и закрывается в течение 5 минут период

Фара (ближний/дальний свет)
Управляет дальним/ближним светом в зависимости от переключателя фар (многофункциональный переключатель).
Управление дневным светом
Управляет лампой дневного света в зависимости от условий в момент запуска автомобиля.
Внутренняя лампа
Лампа кнопки технического обслуживания запуска двигателя
Включает/выключает лампу SSB в зависимости от условий питания автомобиля, состояние открытой/закрытой двери и режим оповещения.
Задняя дверь
Управление открыванием задней двери
Разблокирует замок задней двери и выдает предупреждение в зависимости от Вход переключателя багажника.
Передняя / задняя помощь при парковке
PAS-дисплей
Получает сигнал от датчика системы помощи при парковке по линии LIN. и отображает его на комбинации приборов.
Предупреждение PAS
Обнаруживает препятствия спереди и сзади с помощью системы помощи при парковке датчик (датчик PAS) в случае включения передачи (R или D) и проблемы предупреждение, если есть препятствие.
Предупреждение
Напоминание о непристегнутом ремне и контрольная лампа
Выдает предупреждение, если ремень безопасности не пристегнут, и предотвращает активация шаблона, если автомобиль движется с пристегнутым ремнем безопасности не застегивается.
Предупреждение о ключевом напоминании
Выдает предупреждение, если дверь сиденья водителя открыта при включенном адаптивном круиз-контроле.
Предупреждение о стояночном тормозе
Генерирует звуковой сигнал, если скорость автомобиля превышает 5 км/ч при Зажигание включено, стояночный тормоз включен.
Предупреждение об открытом люке
Выдает предупреждение, если ключ вынут и водитель покидает территорию. автомобиль при открытом люке.
Стеклоочиститель и омыватель
Стеклоочиститель (Низкий / Высокий / Туман / Авто)
IBU получает сигнал переключателя стеклоочистителей непосредственно от MFSW и управляет мотор стеклоочистителя напрямую через реле.

2.

Функции блока смарт-ключей (SMK)

СМК
Дверной замок и разблокировка
Запирает/отпирает дверь на основе сигнала отпирания двери и сигнала от кнопок на водительском/пассажирском сиденье снаружи ручек.
Приветственный свет СМК
Управляет наружным зеркалом заднего вида и лампой лужи после аутентификации смарт-ключа когда водитель со смарт-ключом приближается к автомобилю.
Предупреждение СМК
Ключевое напоминание 1
Когда водитель пытается запереть дверь, он проверяет, есть ли смарт-ключ внутри автомобиля и отпирает дверь, если есть один.
Ключевое напоминание 2
Проверяет состояние дверного замка в течение 0,5 секунды после открытия двери автомобиля. закрывается и открывает дверь и генерирует предупреждающий звук, используя внешний зуммер, если дверь заперта.
Предупреждение о блокировке двери 1
Генерирует предупреждающий звук с помощью внешнего зуммера, если водитель пытается покинуть автомобиль при включенном ACC или IGN.
Предупреждение о блокировке двери 2
Генерирует предупреждающий звук с помощью внешнего зуммера, если водитель пытается запереть дверь и покинуть автомобиль, когда одна или несколько дверей открыты.
Предупреждение о блокировке двери 3
Ищет смарт-ключ внутри автомобиля, когда водитель пытается запереть дверь, выдает предупреждение и не запирает дверь если внутри есть смарт-ключ.
Предупреждение об отключении ключа
Если автомобиль движется со скоростью 3 км/ч или менее при включенном ACC или IGN и дверь открыта, он ищет смарт-ключ каждые 3 секунды и моргает контрольной лампой, если смарт-ключа нет.
SMK RKE (удаленный вход без ключа)
Дверной замок / разблокировка
Запирает/отпирает дверь на основе сигнала отпирания двери и сигнала от кнопок на водительском/пассажирском сиденье снаружи ручек.
Паника
Выполняет функции паники и остановки автомобиля в зависимости от паники. сигнал кнопки.
Запуск двигателя
Кнопка старт-стоп (SSB), иммобилайзер, управление питанием пускового реле, Управление лампой SSB

3.

Функции системы контроля давления в шинах (TPMS)

Система контроля давления в шинах постоянно контролирует давление и температуру внутри шины, чтобы предупредить водителя об изменениях давления в шинах которые могут повлиять на условия вождения автомобиля.

Модуль управления TPMS анализирует данные от WE (Wheel Electronic). датчик крепится внутри каждого колеса и определяет состояние шин и генерирует сигнал, необходимый для управления контрольной лампой.

Процедуры ремонта
осмотр
Диагностика с помощью KDS
1.

В электрической системе тела неисправность можно быстро диагностировать с помощью система диагностики автомобиля (КДС).

Диагностическая система (KDS) предоставляет следующую информацию.

(1)

Самодиагностика: проверка неисправности и кодового номера (DTC)

(2)

Текущие данные: проверка состояния входных/выходных данных системы.

(3)

Проверка срабатывания: Проверка состояния работы системы

(4)

Дополнительная функция: Управление другими функциями, включая систему настройка параметров и регулировка нулевой точки

2.

Выберите «Модель автомобиля» и «Интегрированный блок управления кузовным оборудованием (IBU)», чтобы быть проверенным для того, чтобы проверить автомобиль с помощью тестера.

3.

Выберите меню «Текущие данные» для поиска текущего состояния ввода/вывода. данные.

4.

Чтобы принудительно активировать входное значение проверяемого модуля, выберите опция «Проверка активации».

Корректирование
1.

Если вы хотите изменить параметр пользователя, выберите «Параметры пользователя».

Удаление
1.

Отсоедините отрицательную клемму аккумулятора.

2.

Снимите блок управления отопителем.

(См. раздел «Отопление, вентиляция и кондиционирование воздуха» — «Управление отопителем»). Единица")

3.

Отсоедините разъем электродвигателя вентилятора (А).

4.

Снимите IBU (A), ослабив крепежные гайки.

5.

Отсоедините все разъемы (А) от IBU.

Монтаж
1.

Установите в порядке, обратном снятию.

Встроенный переключатель места с памятью (IMS)
Принципиальные диаграммы Разъем и функция терминала Процедуры ремонта Удаление При подглядывании фл...
Бесключевой доступ и охранная сигнализация
Технические характеристики Спецификация Элемент Спецификация Рабочая Температура 14–140°F (-10–60°C) РЧ модуляция ...
Дополнительная информация:

Руководство по ремонту и обслуживанию Kia Optima DL3 2019-2023: Переключатель интеллектуального круиз-контроля (SCC)


Компоненты и расположение компонентов Компоненты 1. Левый переключатель дистанционного управления (Аудио + Bluetooth + Голос) 2. Правый переключатель дистанционного управления (Поездка + SCC + LFA) Принципиальные диаграммы Принципиальная электрическая схема Процедуры ремонта Удаление ...

Руководство по ремонту и обслуживанию Kia Optima DL3 2019-2023: Верхняя крышка капота


Компоненты и расположение компонентов Расположение компонента 1. Верхняя крышка капота Процедуры ремонта Замена • При снятии плоской отверткой...