Kia Stonic: Sitzelektrik / Sitzheizung

Ремонт Kia Stonic (YB) / Elektrisch verchromter Innenrückspiegel / Ситэлектрик / Ситцхейзунг

Bauteile und bauteile-Übersicht
BAUTEILE-ÜBERSICHT

1. Sitzheizungseinheit (нур Beifahhrersitz)
2. Vordersitzlehnenheizung
3. Vordersitzpolsterheizung

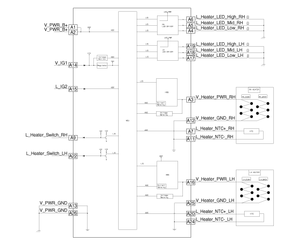
Schematische darstellungen
Шальтплан

Репаратурверфарен
ПРЮФУНГ
1.

Auf Durchgang prüfen und den Widerstand zwischen Klemme Nr. 3 и №. 6 мессен.

Стандартверт

Фахрер/Байфарер (Польстер + Лене)

Beheizter Sitz: 1,54Ω±10%/23°C

Belüfteter Sitz: 1,93Ω±10%/23°C

2.

Die Sitzheizung nach dem Einstecken des Steckverbinders einschalten und dann den Thermostat durch Messung des Sitzflächentemperatur überprüfen.

Стандартверт

1.: Польстер: 36±2°C, Зитцлене: 40±2°C

2.: Зитцпольстер: 39±2°С, Лене: 45±2°С

3.: Зитцпольстер: 42±2°С, Лене: 50±2°С

Аусбау
1.

Аккумуляторная батарея.

2.

Фордерзиц аусбауен.

(Siehe Kapitel Karosserie - "Фордерзиц")

3.

Steckverbinder (A) der Sitzheizungseinheit abziehen.

4.

Befestigungsschrauben lösen, dann Sitzgurtheizungseinheit (A) entfernen.

Эйнбау
1.

Sitzheizung einbauen und Steckverbinder anschließen.

2.

Фордерзиц айнбауен.

3.

Minuspol (-) der Batterie anschließen.

Ситэлектрик
...
Sitzheizungsschalter
Bauteile und bauteile-Übersicht BAUTEILE-ÜBERSICHT 1. Sitzheizungsschalter Fahrerseite 2. Sitzheizungsschalter Beifahrerseite Beschreibung и б ...
Дополнительная информация:

Kia Stonic (YB) Betriebsanleitung: Unsere Empfehlung: Kinder gehören immer auf die Рюкситце.


ПРЕДУПРЕЖДЕНИЕ Sichern Sie Kinder immer richtig im Фарцеуг. Kinder jeden Alters sind sicherer aufgehoben, wenn sie auf einem Rücksitz angeschnallt sind. Platzieren Sie ein nach hinten gerichtetes Kinderrückhaltesystems niemals auf dem Beifahhrersitz, Венн der Beifahrer-Frontairbag nicht ...