Hyundai Tucson: Система контроля улавливания паров топлива / Описание и работа

Описание
Система контроля выбросов паров топлива предотвращает выброс паров топлива. храниться в топливном баке от испарения в атмосферу. Когда топливо испаряется в топливном баке, пар проходит через вентиляционные шланги или трубки к канистре, наполненной древесным углем.
Канистра временно удерживает пары древесного угля. ECM будет контролировать систему, чтобы втягивать собранный пар в камеры сгорания при определенных условиях эксплуатации. Двигатель Вакуум в коллекторе используется для втягивания пара во впускной коллектор.
Операция
Мониторинг испарительной системы

Испарительная система и система контроля выбросов ORVR
Эта система состоит из клапана наполнения и отсечки топлива. клапан, клапан отсечки топлива (для опрокидывания), двухходовой клапан (давление/вакуум сброс), сепаратор топливной жидкости/паров, который установлен рядом с наполнительная труба, угольный фильтр, установленный под задним полом слева лонжерон и протектор, трубки и разные соединения.
При заправке в заливную горловину втягивается окружающий воздух, поэтому чтобы не выделять пары топлива в воздух. Пары топлива в баке затем принудительно поступает в канистру через выпускной клапан. Топливо сепаратор жидкость/пар изолирует жидкое топливо и пропускает чистый пар в угольный баллончик.
Во время работы двигателя пары, попавшие в канистра втягивается во впускной коллектор, а затем в двигатель камера сгорания. Используя этот процесс очистки, угольный фильтр очищается. очищается и восстанавливает свою поглощающую способность.

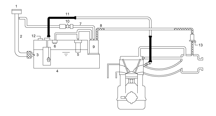
1. Крышка топливного бака
2. Топливная горловина
3. Клапан отсечки топлива
4. Топливный бак
5. Клапан ОРВР
6. 2-ходовой и отсечной клапан
7. Испарительный шланг
8. Испарительный шланг
9. Канистра
10. Клапан закрытия адсорбера (CCV)
11. Линия подачи топлива
12. Датчик давления в топливном баке (FTPS)
13. Электромагнитный клапан управления продувкой (PCSV)

Система контроля выбросов паров топлива
...
Схематические диаграммы
Схематическая диаграмма Канистра Канистра заполнена древесным углем и поглощает испаряющийся паров топлива из топливного бака. Собранные пары топлива в адсорбере втягивается во впускной коллектор через т...
Дополнительная информация:

Hyundai Tucson (LM) 2010-2015 Руководство по эксплуатации: Не ложиться
Сидеть в наклонном положении во время движения автомобиля может быть опасно. Даже когда вы пристегнуты, защита вашей удерживающей системы (ремни безопасности и подушки безопасности) значительно уменьшается, если наклонить спинку сиденья. Для снижения вероятности получения травм в случае аварии и достижения ...

Hyundai Tucson (LM) 2010-2015 Руководство по эксплуатации: Использование ESC OFF
Во время вождения Режим ESC OFF следует использовать только на короткое время, чтобы помочь освободить автомобиль, если он застрял. в снегу или грязи, временно остановив работу ESC, чтобы сохранить крутящий момент колеса. Чтобы выключить ESC во время движения, нажмите кнопку ESC OFF во время движения по ровной поверхности. дорожное покрытие. ОСТОРОЖНОСТЬ Для предотвращения д...