Hyundai Tucson manuels

Hyundai Tucson Automotive Service Manual: ЭБУ 4WD

Компоненты и расположение компонентов

расположение компонента

1.ЭБУ 4WD

Описание и работа

Описание
ЭБУ полного привода обрабатывает сигналы от различных датчиков и определяет условия текущего вождения и дороги. Затем ЭБУ использует эту информацию для осуществлять прецизионный контроль на многодисковой муфте муфты 4WD и плавно регулировать крутящий момент, подаваемый на задние колеса.

Диаграмма потока

схема питания

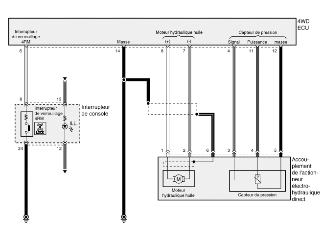
Схема ввода и вывода ЭБУ 4WD

Принципиальные диаграммы

принципиальная электрическая схема
разъем ЭБУ полного привода

Функция терминала ЭБУ 4WD
Приколоть
Функция
1
Линия связи CAN (BAS)
2
Линия связи CAN (ВЕРХ)
3
-
4
Сигнал датчика давления (+)
5
-
6
Переключатель блокировки полного привода
7
Гидравлическое моторное масло (+)
8
Гидравлическое моторное масло (+)
9
-
10
-
11
Мощность датчика давления
12
Сигнал датчика давления (-)
13
ПИТАНИЕ БАТАРЕИ
14
масса
15
Включение/ПУСК питания
16
-
17
-
18
-

Схема ЭБУ 4 РМ

Процедуры ремонта

ЗАМЕНА
1.
Перед заменой ЭБУ полного привода проверьте обучение сцепления. ЭБУ 4WD с помощью инструмента GDS.
(См. Система управления 4WD — «Регулировка».)
2.
Отсоедините отрицательный кабель аккумулятора от аккумулятора.
3.
Снимите обшивку со стороны багажника.
(См. Кузов — «Боковая отделка багажника»)
4.
Отсоедините разъем ЭБУ полного привода (А).
5.
Ослабьте гайки и снимите ЭБУ 4WD (B).
Момент затяжки:
9,8~11,8 Н·м (1,0~1,2 кгс·м, 7,2~8,7 фунт-фут)

СРЕДСТВО
1.
Для установки выполните процедуру, обратную снятию.
2.
Перед установкой нового ЭБУ загрузите обучение сцепления. с оригинального ЭБУ на сменный ЭБУ с помощью инструмента GDS.
(См. Система управления 4WD — «Регулировка».)
Процедуры ремонта
ПАРАМЕТР Описание Фрикционный материал муфты со временем изнашивается. Как результат, соответствующие значения компенсации должны быть...

Комплект муфт
...
Другие материалы:

Использование круиз-контроля
¦ Тип А ¦ B-тип 1. КРУИЗ-индикатор 2. Индикатор установки Круиз-контроль позволяет двигаться со скоростью выше 30 км/ч. (20 миль в час), не нажимая педаль акселератора. ПРЕДУПРЕЖДЕНИЕ Примите следующие меры предосторожности: Если круиз-контроль остается в...

Внутреннее освещение
Задний фонарь/фонарь заднего хода 1. Остановите двигатель. 2. Откройте заднюю дверь. 3. Снимите крышку обслуживания с помощью плоской отвертки. 4. Снимите втулку, повернув ее против часовой стрелки, пока так, чтобы его ножки совпадали с выемками. 5.Рети...