Hyundai Elantra: Процедуры ремонта системы кондиционирования воздуха / компрессора

Удаление
Меры предосторожности при использовании пластикового шкива
Будьте осторожны, чтобы не оказывать физического воздействия на пластиковый шкив.
При воздействии падения и столкновения шкив не следует использовать, хотя он и не поврежден.
Будьте осторожны, чтобы не опустить шкив вниз на пол или стол.

Будьте осторожны, чтобы не применять внешнюю силу и не ударять по шкиву во время движения или использования.

Будьте осторожны, не применяйте силу к шкиву.

1.
Если компрессор работает на пределе, запустите двигатель на обороты холостого хода и дайте кондиционеру поработать несколько минут, затем выключите двигатель.
2.
Отсоедините отрицательную (-) клемму аккумуляторной батареи.
3.
Восстановите хладагент с помощью рекуперационной/зарядной станции.
4.
Снимите крышку машинного отделения.
(См. Механическая система двигателя — «Крышка машинного отделения»)
5.
Снимите защиту переднего колеса.
(См. Кузов — «Защита переднего колеса»)
6.
Ослабьте приводной ремень.
(См. Механическая система двигателя — «Приводной ремень»)
7.
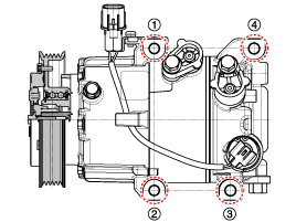
Снимите болты, затем отсоедините всасывающую линию (А) и нагнетательную линию (В) от компрессора.

Момент затяжки :
8,8 ~ 13,7 Н·м (0,9 ~ 1,4 кгс·м, 6,5 ~ 10,1 фунт-фут)

Заглушите или закройте линии сразу после их отсоединения, чтобы избежать попадания влаги и пыли.

8.
Отсоедините разъем переключателя компрессора (А).

9.
Снимите компрессор (А), ослабив крепежные болты.

Момент затяжки :
20,0 ~ 32,95 Н·м (2,04 ~ 3,36 кгс·м, 14,75 ~ 24,30 фунт-фут)

Монтаж
1.
Убедитесь, что крепежный болт компрессора правильно длина ввинчивается. Затяните крепежные болты с указанным порядок затягивания.

Момент затяжки :
20,0 ~ 32,95 Н·м (2,04 ~ 3,36 кгс·м, 14,75 ~ 24,30 фунт-фут)

2.
Для установки выполните процедуру удаления в обратном порядке.
Если вы устанавливаете новый компрессор, слейте весь хладагент. масло из снятого компрессора и измерьте его объем. Вычесть объем слитого масла от первоначальной емкости. Результатом является количество масла компрессорного масла, которое необходимо слить из нового компрессора (через всасывающий штуцер).
Замените уплотнительные кольца новыми на каждом фитинге и нанесите тонким слоем охлаждающего масла перед их установкой. Обязательно используйте правые уплотнительные кольца для R-134a или R-1234yf во избежание утечки.
Во избежание загрязнения не возвращайте масло в контейнер после разлива и никогда не смешивайте его с другими маслами для хладагентов.
Сразу же после использования масла закройте емкость крышкой и закройте ее, чтобы избежать впитывания влаги.
осмотр
1.
Проверьте гальванические детали ограничителя и ступицы в сборе на изменение цвета, шелушение или другие повреждения. При наличии повреждений замените сборка.
2.
Проверьте зазор в подшипнике шкива (А) и протяните его, вращая шкив своими руками. Замените шкив новым, если он шумит или имеет чрезмерная игра / перетаскивание.

Осмотр компрессора с внешним регулирующим клапаном (GDS)
Тип компрессора: Компрессор фиксированного типа, Внешний регулирующий клапан, Внутренний регулирующий клапан.
В случае стационарного типа и внутреннего регулирующего клапана можно проверить работу компрессора по шуму муфты.
Однако, когда речь идет о внешнем регулирующем клапане, его нельзя проверить таким образом, потому что у него нет муфты.
Таким образом, ECV следует проверять с помощью GDS, как показано ниже.
1.
Подключите GDS к автомобилю и выберите «Тест компрессора кондиционера (тип ECV)».
[ECV1]

2.
Подготовьте автомобиль в соответствии с инструкциями GDS на мониторе. (Выключите только «переключатель» кондиционера)
[ECV2]

[ECV3]

3.
Перед осмотром ECV проверьте, не обнаружены ли другие коды DTC. компрессор. Если да, то сначала решите эту проблему. Если нет, нажмите кнопку «ОК» продолжать.
Не продолжайте осмотр, если обнаружены следующие коды DTC: B1241, B1242, B1672, B1685, B1686, B1687.
[ECV4]

4.
Начать осмотр
[ECV5]

[ECV6]

Проверьте, работает ли вентилятор конденсатора, когда условие изменяется на «ECV работает».
Предохранительный клапан сработает, если вентилятор конденсатора не работает. из-за избыточного давления в компрессоре. Это позволяет системе кондиционирования сбросьте избыточное давление, выпустив хладагент и масло. (Закрыто, если с облегчением)
? Долейте хладагент и масло после срабатывания предохранительного клапана
? Шум может наблюдаться при работе предохранительного клапана.
5.
Проверьте результат проверки и нажмите «Проверить подробности», если это «Проверить». Следуйте инструкциям и снова проверьте ECV с первый шаг.
[ECV7]

[ECV8]

Разборка
1.
Снимите крышку машинного отделения.
(См. Механическая система двигателя — «Крышка машинного отделения»)
2.
Снимите защиту переднего колеса.
(См. Кузов — «Защита переднего колеса»)
3.
Ослабьте приводной ремень.
(См. Механическая система двигателя — «Приводной ремень»)
4.
Снимите болт сцепления, удерживая шкив с помощью съемника болтов сцепления (09977-3R000).

Момент затяжки :
10,0 ~ 15,0 Н·м (1,02 ~ 1,53 кгс·м, 7,37 ~ 11,0 фунт-фут)

5.
Ослабьте болты ограничителя и снимите ограничитель со ступицей в сборе.

6.
Снимите шкив (В), предварительно сняв стопорное кольцо (А) с помощью щипцов для стопорных колец.

Будьте осторожны, чтобы не повредить шкив и компрессор во время разборки/сборки.
После снятия стопорного кольца замените его новым.
7.
Соберите в порядке, обратном разборке.
А.
Очистите поверхности скольжения шкива и компрессора ненефтяным растворителем.
Б.
Установите новое стопорное кольцо и убедитесь, что оно полностью вошло в канавку.
С.
Убедитесь, что шкив вращается плавно после сборки.
Компоненты компрессора и расположение компонентов
Компоненты [Ню Двигатель] 1. Болт сцепления2. Ограничитель и ступица в сборе3. Прокладка ступицы муфты компрессора4. фиксатор5. Шкив6. Сборка катушки возбуждения сцепления7. Сборка компрессора8. Электрический регулирующий клапан ...
Компоненты конденсатора и расположение компонентов
Расположение компонентов 1. Конденсатор ...
Дополнительная информация:

Hyundai Elantra AD (2016-2020) Руководство по техническому обслуживанию: Ремонт заливной горловины в сборе
Удаление 1. Снимите заднее левое колесо, шину и внутреннюю колесную нишу. 2. Отсоедините шланг топливного фильтра (А) и вентиляционный шланг (В). 3. Откройте лючок топливного бака и открутите крепежный винт узла заливной горловины (А). 4. Снимите заливную горловину в сборе с автомобиля после...

Hyundai Elantra AD (2016-2020) Руководство по эксплуатации: Индикаторы режимов SPORT и SMART
Световой индикатор режима SPORT Этот индикатор загорается: • Когда вы выбираете режим "СПОРТ" в качестве режима вождения. Дополнительные сведения см. в разделе «Интегрированная система управления режимом движения» в главе 5. Световой индикатор режима SMART Этот индикатор загорается: • При выборе ...